賃料 |
12.2万円 |
共益費/管理費 |
9,000円 |
|---|---|---|---|
敷金 |
1ヶ月 |
礼金 |
1ヶ月 |
保証金 |
- |
敷引_償却 |
- |
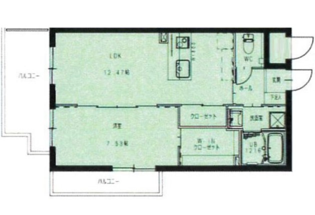
間取り |
1LDK |
専有面積 |
48.28m²(14.6坪) |
築年月 |
2025/03(1年未満) |
部屋番号 |
205 |
住所 |
埼玉県さいたま市北区宮原町1丁目361-3 |
||
アクセス |
JR宇都宮線土呂駅まで 徒歩18分
ニューシャトル線加茂宮駅まで 徒歩8分 |
お電話でのお問い合わせ
物件番号:20931
お電話でお問い合わせの際は、物件番号をお伝えください。
048-666-2222
営業時間:10:00 - 18:00
定休日:火・水 定休
ポイント
POINT
大砂土小学校北西方面。3駅3路線利用可。2025年3月築のRC造マンション。室内設備充実。バイク置き場有。
物件詳細DETAIL
所在地 |
埼玉県さいたま市北区宮原町1丁目361-3 |
||
|---|---|---|---|
アクセス |
JR宇都宮線土呂駅まで 徒歩18分
ニューシャトル線加茂宮駅まで 徒歩8分 |
||
賃料 |
12.2万円 |
共益費/管理費 |
9,000円 |
礼金 |
1ヶ月 |
敷金 |
1ヶ月 |
保証金 |
- |
敷引/償却 |
- |
間取 |
1LDK |
間取詳細 |
LDK12.47、洋7.53 |
専有面積 |
48.28m²(14.6坪) |
向き |
北 |
種別 |
マンション |
建物構造 |
鉄筋コンクリート造 |
所在階/階建 |
2階/5階建 |
築年月 |
2025/03(1年未満) |
総戸数 |
- |
入居可能時期 |
2026/03 上旬 |
契約期間 |
2年 |
更新料 |
新賃料の1.0ヶ月分 |
保険等 |
要 2年 |
保証会社 |
|
鍵交換費用 |
- |
退去ハウスクリーニング前払費 |
- |
仲介手数料 |
1ヶ月 |
取引態様 |
仲介 |
入居諸条件 |
仲介手数料 |
1ヶ月 |
|
駐車場 |
空有 16,500円 |
学区 |
大砂土小学校
植竹中学校 |
設備・特徴 |
バイク置場、角部屋、追焚システム、浴室乾燥機、ウォシュレット、洗面所独立、シャンプードレッサー、対面カウンターキッチン、クローク、室内洗濯機置場、オール洋室、都市ガス、エアコン、CATV、インターネット対応、ダブルロック・ディンプルキー等、TVモニター付インターホン、バルコニー、システムキッチン、浴室シャワー、エレベータ、宅配ボックス、オートロック、バストイレ別、駐車場、2階以上、築5年以内 |
||
コメント |
大砂土小学校北西方面。3駅3路線利用可。2025年3月築のRC造マンション。室内設備充実。バイク置き場有。 |
||
情報更新日 |
2026年02月05日 |
次回更新予定日 |
2026年02月06日 |
※掲載されている物件データが現状と異なる場合は現状を優先します。
周辺地図MAP
有限会社土呂不動産COMPANY
所在地 |
埼玉県さいたま市北区土呂町2-17-1 |
||
|---|---|---|---|
免許番号 |
埼玉県知事(11)第10777号 |
||
会員 |
社団法人 全国宅地建物取引業保証協会
社団法人 埼玉県宅地建物取引業協会会員
シャーメゾンショップ
|
||
電話番号 |
048-666-2222 |
FAX番号 |
048-653-2591 |
営業時間 |
10:00 - 18:00 |
定休日 |
火・水 定休 |
