
賃料 |
4.4万円 |
共益費/管理費 |
- |
---|---|---|---|
敷金 |
- |
礼金 |
- |
保証金 |
- |
敷引_償却 |
- |
間取り |
1R |
専有面積 |
16.51m²(4.99坪) |
築年月 |
1991/07(築34年) |
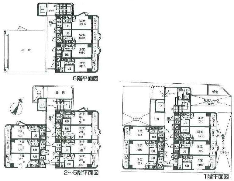
部屋番号 |
604 |
住所 |
埼玉県さいたま市北区土呂町1丁目45-11 |
||
アクセス |
JR宇都宮線土呂駅まで 徒歩8分
東武野田線大宮公園駅まで 徒歩19分 |
お電話でのお問い合わせ
物件番号:5309
お電話でお問い合わせの際は、物件番号をお伝えください。
048-666-2222
営業時間:10:00 - 18:00
定休日:火・水 定休
ポイント
POINT
ウェルシア土呂店南東側。高利便性。外壁はタイル張り。オートロック、エアコン付の1Rマンション。
物件詳細DETAIL
所在地 |
埼玉県さいたま市北区土呂町1丁目45-11 |
||
---|---|---|---|
アクセス |
JR宇都宮線土呂駅まで 徒歩8分
東武野田線大宮公園駅まで 徒歩19分 |
||
賃料 |
4.4万円 |
共益費/管理費 |
- |
礼金 |
- |
敷金 |
- |
保証金 |
- |
敷引/償却 |
- |
間取 |
1R |
間取詳細 |
|
専有面積 |
16.51m²(4.99坪) |
向き |
東 |
種別 |
マンション |
建物構造 |
鉄筋コンクリート造 |
所在階/階建 |
6階/6階建 |
築年月 |
1991/07(築34年) |
総戸数 |
- |
入居可能時期 |
2025/11 上旬 |
契約期間 |
2年 |
更新料 |
新賃料の1.0ヶ月分 |
保険等 |
要 2年 |
保証会社 |
|
鍵交換費用 |
- |
退去ハウスクリーニング前払費 |
- |
仲介手数料 |
1ヶ月 |
取引態様 |
仲介 |
入居諸条件 |
仲介手数料 |
1ヶ月 |
|
駐車場 |
無 |
学区 |
|
設備・特徴 |
室内洗濯機置場、エアコン、押入等収納、CATV、バルコニー、エレベータ、オートロック、角部屋、駐車場、浴室シャワー、2階以上、最上階、都市ガス、インターネット対応、インターホン |
||
コメント |
ウェルシア土呂店南東側。高利便性。外壁はタイル張り。オートロック、エアコン付の1Rマンション。 |
||
情報更新日 |
2025年10月18日 |
次回更新予定日 |
2025年10月19日 |
※掲載されている物件データが現状と異なる場合は現状を優先します。
周辺地図MAP

有限会社土呂不動産COMPANY
所在地 |
埼玉県さいたま市北区土呂町2-17-1 |
||
---|---|---|---|
免許番号 |
埼玉県知事(11)第10777号 |
||
会員 |
社団法人 全国宅地建物取引業保証協会
社団法人 埼玉県宅地建物取引業協会会員
シャーメゾンショップ
|
||
電話番号 |
048-666-2222 |
FAX番号 |
048-653-2591 |
営業時間 |
10:00 - 18:00 |
定休日 |
火・水 定休 |